

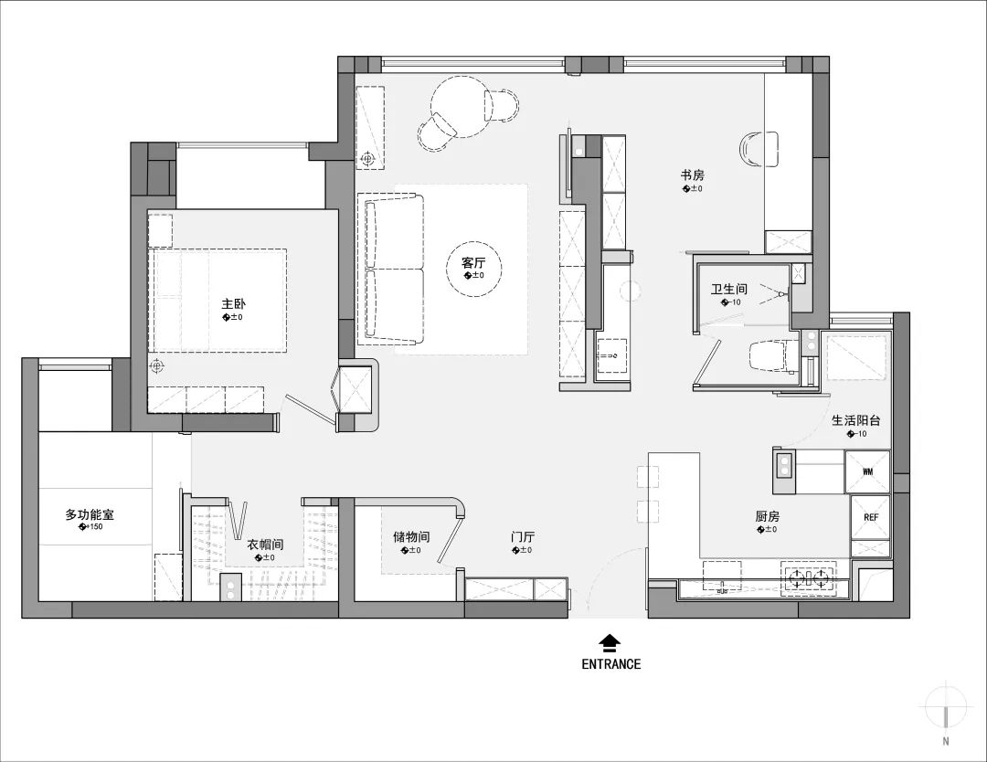
在一进门的左手边增加通顶的玄关鞋帽柜,开放格和悬浮式的柜体,让这里在视觉上并不显得拥挤和压抑。


靠近玄关的一侧,增加了一组岛台,既可以是台面的扩展,也可以作为餐桌。




紧靠厨房的生活阳台他们也没有浪费,洗衣机和烘干机解决日常的衣物清洁。生活阳台和厨房之间也用磨砂玻璃引入更多的自然光线。

设计师选择把阳台分别纳入客厅和书房区域,在这两个他们在家待的时间最久的地方,获得更多的可用空间。





书房与客厅,书房与卫生间之间以两道推拉门作为分割,整个空间可开可合,在有限的空间里,满足不同的办公和生活的模式。

做到了干湿三分里的卫生间,一改整个空间木色与白色的主色调,为生活带来一份疗愈的绿色。


沿着储物间向里走,就进入了家里的“静区”,由主卧、衣帽间、多功能室组成。



